W tym artykule dowiesz się, czym jest inwentaryzacja budynku, dlaczego jest niezbędna w wielu sytuacjach życiowych i formalnych, a także co powinna zawierać profesjonalna dokumentacja. Poznaj praktyczne zastosowania, etapy procesu oraz kto może ją dla Ciebie wykonać.
Inwentaryzacja budynku to szczegółowe odtworzenie stanu faktycznego nieruchomości kluczowe w wielu sytuacjach formalnych i projektowych.
- Inwentaryzacja architektoniczno-budowlana to proces zbierania danych i tworzenia dokumentacji technicznej obiektu, gdy brakuje oryginalnych projektów lub stan faktyczny uległ zmianom.
- Jest niezbędna m.in. przy legalizacji samowoli budowlanej, zmianie sposobu użytkowania, planowaniu przebudowy, sprzedaży nieruchomości czy zarządzaniu obiektem.
- Profesjonalna dokumentacja składa się z części opisowej (dane ogólne, opis techniczny, zestawienie powierzchni, instalacje) oraz rysunkowej (rzuty kondygnacji, dachu, przekroje, elewacje).
- Inwentaryzację wykonują specjaliści z odpowiednimi uprawnieniami budowlanymi, najczęściej architekci, konstruktorzy lub inżynierowie budownictwa, a w przypadku inwentaryzacji geodezyjnej geodeci.
- Współczesne inwentaryzacje coraz częściej wykorzystują zaawansowane technologie, takie jak skaning laserowy 3D, zapewniając wysoką precyzję i szybkość pomiarów.

Czym jest inwentaryzacja budynku i kiedy jest niezbędna?
Inwentaryzacja architektoniczno-budowlana to nic innego jak szczegółowe odtworzenie stanu faktycznego istniejącego obiektu budowlanego. Jest to proces zbierania precyzyjnych danych, a następnie przedstawiania ich w formie kompleksowej dokumentacji technicznej, składającej się z części opisowej i rysunkowej. Taki dokument staje się niezbędny w sytuacjach, gdy brakuje oryginalnej dokumentacji projektowej lub gdy stan faktyczny budynku znacząco odbiega od pierwotnych planów, na przykład w wyniku przeprowadzonych, ale niezgłoszonych zmian.
Z mojego doświadczenia wynika, że inwentaryzacja jest często nieunikniona w wielu kluczowych momentach związanych z nieruchomością. Oto najczęstsze z nich:
- Legalizacja samowoli budowlanej: To jeden z najczęstszych powodów. Inwentaryzacja jest kluczowym dokumentem, wymaganym przez nadzór budowlany w procesie legalizacji obiektu wybudowanego bez pozwolenia lub zgłoszenia.
- Zmiana sposobu użytkowania: Jeśli planujesz adaptować budynek lub jego część na inne cele, np. przekształcić lokal usługowy na mieszkalny, inwentaryzacja jest konieczna.
- Przebudowa, rozbudowa lub nadbudowa: Stanowi ona podstawę dla architekta do stworzenia projektu modernizacji, dostarczając dokładnych wymiarów i informacji o konstrukcji. Bez niej żaden projekt nie powstanie.
- Sprzedaż lub wynajem nieruchomości: Umożliwia precyzyjne określenie powierzchni użytkowej, co jest kluczowe przy wycenie i sporządzaniu umów. Na jej podstawie można również uzyskać zaświadczenie o samodzielności lokalu.
- Zarządzanie nieruchomością: Pomaga zarządcom w planowaniu remontów, konserwacji i prowadzeniu książki obiektu budowlanego.
- Odtworzenie dokumentacji: W przypadku zagubienia lub zniszczenia oryginalnych projektów budowlanych, inwentaryzacja pozwala na ich odtworzenie.
- Ocena stanu technicznego: Często stanowi bazę do wykonania ekspertyzy technicznej budynku.

Co zawiera profesjonalna dokumentacja inwentaryzacyjna?
Profesjonalnie wykonana dokumentacja inwentaryzacyjna to kompleksowy zbiór informacji o budynku, który dzieli się na dwie główne części: opisową i rysunkową. Część opisowa to swego rodzaju "metryczka" budynku, zawierająca wszystkie kluczowe dane tekstowe. Z mojego doświadczenia wynika, że jest ona niezwykle istotna dla pełnego zrozumienia stanu obiektu.
Powinna ona zawierać:
- Dane ogólne o nieruchomości: Adres, numer działki, numer księgi wieczystej, właściciel, rok budowy (jeśli znany).
- Opis techniczny elementów budynku: Szczegółowy opis fundamentów, ścian (rodzaj materiału, grubość), stropów, dachu (konstrukcja, pokrycie), stolarki okiennej i drzwiowej, posadzek, tynków.
- Opis instalacji: Dokładny opis wszystkich istniejących instalacji, takich jak wodno-kanalizacyjna, elektryczna, grzewcza (rodzaj ogrzewania, źródło ciepła), wentylacyjna i gazowa (jeśli występuje).
Niezwykle ważnym elementem części opisowej jest zestawienie powierzchni. Obejmuje ono powierzchnię użytkową (czyli tę, która jest faktycznie wykorzystywana), powierzchnię zabudowy (rzut poziomy budynku na poziomie terenu) oraz powierzchnię całkowitą. Te dane są absolutnie kluczowe przy wycenie nieruchomości, sporządzaniu umów kupna-sprzedaży czy najmu, a także przy ubieganiu się o zaświadczenie o samodzielności lokalu.
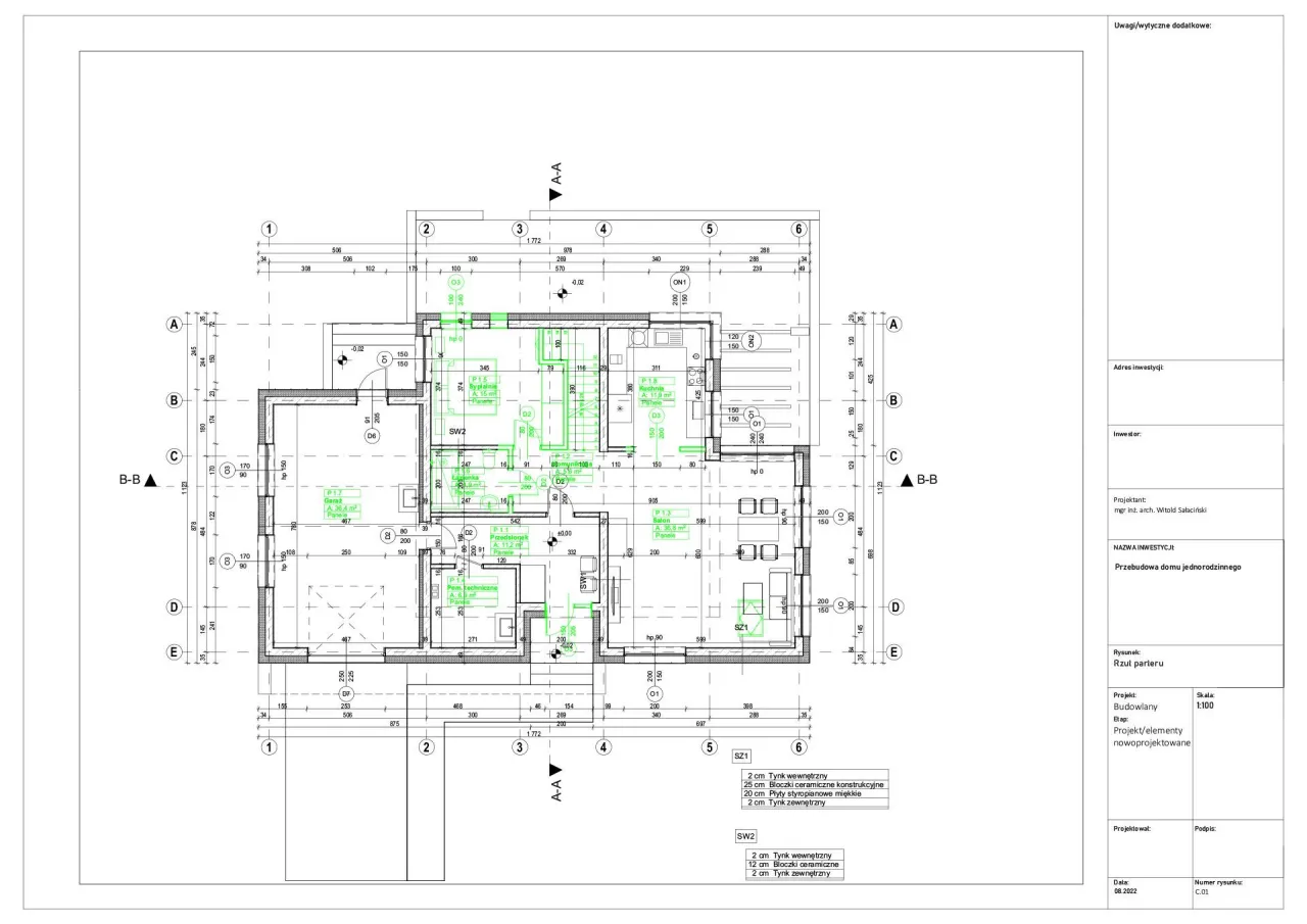
Część rysunkowa to wizualne przedstawienie budynku, które uzupełnia i precyzuje informacje zawarte w opisie. To właśnie na rysunkach widać wszystkie wymiary i układ pomieszczeń. Są one wykonywane w odpowiedniej skali, najczęściej 1:50 lub 1:100, aby zapewnić czytelność i dokładność.
Typowa część rysunkowa zawiera:
- Rzuty wszystkich kondygnacji: Przedstawiają układ pomieszczeń na każdym piętrze, z naniesionymi wymiarami, opisem funkcji poszczególnych pomieszczeń (np. "pokój", "kuchnia", "łazienka"), a także lokalizacją otworów okiennych i drzwiowych.
- Rzut dachu: Pokazuje kształt dachu, jego spadki, rodzaj pokrycia oraz wymiarowanie.
- Przekroje charakterystyczne: To rysunki przedstawiające budynek "przecięty" wzdłuż lub w poprzek, ukazujące jego konstrukcję w pionie wysokość kondygnacji, układ stropów, fundamenty, konstrukcję dachu.
- Rysunki elewacji: Prezentują wygląd zewnętrzny budynku z każdej strony, z uwzględnieniem otworów, detali architektonicznych i wysokości.
- Rzut fundamentów: Jeśli jest możliwy do odtworzenia, pokazuje układ i wymiary fundamentów.
Jak wygląda proces inwentaryzacji budynku?
Proces inwentaryzacji budynku, choć wydaje się skomplikowany, jest zazwyczaj dobrze ustrukturyzowany. Jako specjalista, zawsze staram się przeprowadzić klienta przez każdy etap, aby zapewnić pełną transparentność i efektywność. Oto typowy przebieg prac:
- Pierwszy kontakt i ustalenie zakresu: Rozpoczyna się od rozmowy z klientem, podczas której ustalamy cel inwentaryzacji (np. legalizacja, przebudowa, sprzedaż), rodzaj obiektu, jego wielkość i dostępność ewentualnej istniejącej dokumentacji. Na tej podstawie określamy zakres prac i przygotowujemy wstępną wycenę.
- Wizja lokalna i pomiary: To kluczowy etap. Specjalista (architekt, konstruktor) udaje się na miejsce, aby dokładnie zmierzyć wszystkie elementy budynku. Obejmuje to wymiary zewnętrzne i wewnętrzne, wysokości pomieszczeń, grubość ścian, lokalizację otworów okiennych i drzwiowych, a także szczegóły konstrukcyjne i instalacyjne.
- Zebranie danych i dokumentacji: Oprócz pomiarów, zbierane są wszelkie dostępne informacje o budynku stare projekty, pozwolenia na budowę, zdjęcia. Wszystko to pomaga w jak najdokładniejszym odtworzeniu stanu faktycznego.
- Opracowanie części rysunkowej: Na podstawie zebranych pomiarów i danych, specjalista tworzy precyzyjne rysunki techniczne: rzuty kondygnacji, rzut dachu, przekroje, elewacje. To właśnie na tym etapie powstaje wizualna reprezentacja budynku.
- Opracowanie części opisowej: Równolegle lub po zakończeniu rysunków, przygotowywana jest część opisowa, zawierająca wszystkie dane tekstowe: opis techniczny, zestawienie powierzchni, opis instalacji itp.
- Weryfikacja i konsultacje: Gotowa dokumentacja jest często konsultowana z klientem, aby upewnić się, że wszystkie dane są zgodne z jego oczekiwaniami i stanem faktycznym. Ewentualne poprawki są nanoszone.
- Przekazanie finalnej dokumentacji: Po akceptacji, klient otrzymuje kompletną dokumentację inwentaryzacyjną w uzgodnionej formie (np. papierowej i cyfrowej).
Współczesna inwentaryzacja to już nie tylko miarka i ołówek. Coraz częściej wykorzystujemy zaawansowane narzędzia, takie jak skaning laserowy 3D. Ta technologia pozwala na stworzenie niezwykle precyzyjnej "chmury punktów", która jest cyfrowym odwzorowaniem obiektu. Na jej podstawie możemy modelować budynek w środowisku BIM (Building Information Modeling), co jest znacznie szybsze i dokładniejsze niż tradycyjne pomiary ręczne. Dzięki temu klienci otrzymują nie tylko dokumentację 2D, ale często również cyfrowy model, który może być wykorzystany w dalszych pracach projektowych.
Warto pamiętać, że czas i koszt wykonania inwentaryzacji nie są stałe. Zależą one od wielu czynników, takich jak wielkość i złożoność obiektu (np. liczba kondygnacji, skomplikowany kształt dachu), zakres wymaganych prac (czy potrzebne są wszystkie rysunki i opisy, czy tylko wybrane elementy) oraz zastosowane technologie pomiarowe. Dlatego też, zawsze podkreślam, że są to kwestie indywidualnie ustalane z każdym specjalistą.
Kto może wykonać inwentaryzację i jak wybrać specjalistę?
Kwestia tego, kto może legalnie przeprowadzić inwentaryzację budynku, jest niezwykle ważna, aby uniknąć problemów formalnych. Zgodnie z przepisami, dokumentację inwentaryzacyjną może sporządzić jedynie osoba posiadająca odpowiednie uprawnienia budowlane. Najczęściej są to architekci, konstruktorzy lub inżynierowie budownictwa. Ich wiedza i doświadczenie gwarantują, że dokumentacja będzie kompletna, precyzyjna i zgodna z obowiązującymi normami.Wybór odpowiedniego specjalisty zależy w dużej mierze od celu, w jakim inwentaryzacja jest sporządzana. Jeśli potrzebujesz szczegółowych rzutów i opisów do projektu przebudowy, najlepszym wyborem będzie architekt. W przypadku konieczności oceny stanu konstrukcji lub planowania skomplikowanych zmian konstrukcyjnych, warto zwrócić się do konstruktora. Natomiast, gdy mowa o inwentaryzacji geodezyjnej, na przykład powykonawczej, niezbędne są uprawnienia geodezyjne i tu pomoże geodeta.
Aby mieć pewność, że powierzasz zadanie kompetentnej osobie, zawsze rekomenduję zweryfikowanie kwalifikacji specjalisty. Nie wahaj się poprosić o przedstawienie dokumentów potwierdzających posiadane uprawnienia budowlane. Warto również sprawdzić, czy specjalista jest członkiem odpowiedniej izby zawodowej (np. Izby Architektów lub Izby Inżynierów Budownictwa). To proste kroki, które pomogą uniknąć kosztownych błędów i zapewnią, że otrzymana dokumentacja będzie wiarygodna i akceptowana przez urzędy.

Przeczytaj również: Który budynek jest najwyższy na świecie? Poznaj Burdż Chalifa!
Praktyczne zastosowanie inwentaryzacji: gdzie jest niezbędna?
Inwentaryzacja budynku to nie tylko formalność, ale przede wszystkim fundament dla wszelkich przyszłych działań związanych z nieruchomością. Jest ona absolutnie niezbędna, gdy planujemy projekty przebudowy, rozbudowy, nadbudowy czy adaptacji. To właśnie ona dostarcza architektom wszystkich danych o wymiarach, układzie pomieszczeń, wysokościach i konstrukcji, które są kluczowe do stworzenia realistycznego i wykonalnego projektu. Bez aktualnej inwentaryzacji, projektowanie jest jak budowanie zamku na piasku nie ma solidnych podstaw.
Jednym z najbardziej krytycznych zastosowań inwentaryzacji jest jej rola w procesie legalizacji samowoli budowlanej. Jeśli obiekt został wybudowany bez pozwolenia lub zgłoszenia, nadzór budowlany wymaga przedstawienia szczegółowej inwentaryzacji architektoniczno-budowlanej. Jest to dokumentacja, która pozwala urzędnikom ocenić stan faktyczny obiektu i podjąć decyzję o jego legalizacji. Bez niej, proces legalizacji jest praktycznie niemożliwy do przeprowadzenia.
Inwentaryzacja stanowi również podstawę do precyzyjnej wyceny nieruchomości, co jest nieocenione przy sprzedaży lub wynajmie. Dzięki niej można dokładnie określić powierzchnię użytkową, zabudowy i całkowitą, co ma bezpośrednie przełożenie na wartość rynkową obiektu. Jest także niezbędna do sporządzania umów oraz do uzyskiwania zaświadczeń o samodzielności lokalu, które są wymagane np. przy wydzielaniu odrębnych mieszkań w kamienicy.Nie można zapominać o roli inwentaryzacji w zarządzaniu nieruchomościami. Dla zarządców i właścicieli obiektów jest to narzędzie, które wspiera planowanie remontów, konserwacji i bieżącego utrzymania. Umożliwia prowadzenie książki obiektu budowlanego w sposób rzetelny i zgodny z przepisami, co jest kluczowe dla bezpieczeństwa i długowieczności budynku. Posiadanie aktualnej dokumentacji to po prostu odpowiedzialne podejście do zarządzania majątkiem.
